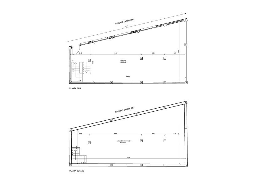
Bent u op zoek naar een veelzijdig vastgoedproject onder de zon? Deze gloednieuwe commerciële unit in Los Montesinos biedt u de perfecte basis om uw droom op de Costa Blanca te realiseren. Met een royaal woonoppervlak van 182 m², verdeeld over een begane grond van 97 m² en een semi-kelder van 85 m², heeft u volop ruimte om uw ideale onderneming of woning te creëren. Dankzij vier grote ramen aan de voorzijde baadt het pand in natuurlijk daglicht, wat zorgt voor een uitnodigende sfeer voor klanten of een lichte, ruime leefomgeving als u kiest voor residentieel gebruik.
De unit wordt onafgewerkt en leeg opgeleverd, waardoor u volledig vrij bent om uw eigen stijl en indeling te kiezen. De verhoogde entree en brede raampartijen geven het geheel een moderne uitstraling, ideaal voor een galerie, winkel, praktijkruimte of een royale loftwoning. De semi-kelder biedt extra opslagmogelijkheden of kan worden ingericht als onderdeel van een luxueuze woonruimte.
Deze eigendom sluit perfect aan bij de wensen van buitenlandse kopers die op zoek zijn naar flexibiliteit, ruimte en investeringspotentieel in een veilige en zonnige regio. Of u nu droomt van een eigen zaak, een atelier of een ruime woning met veel licht, deze unit biedt u de kans om uw toekomst in Spanje vorm te geven. Zet vandaag de stap naar een nieuw leven in Los Montesinos en ontdek de mogelijkheden!
Los Montesinos is een charmant dorpje in het hart van de Costa Blanca, bekend om zijn milde klimaat en gemoedelijke sfeer. Hier geniet u van meer dan 300 dagen zon per jaar, een ontspannen levensstijl en prachtige natuurlijke omgeving. De nabijheid van salinas (zoutmeren) zorgt voor zuivere lucht en schilderachtige wandelroutes.
In de directe omgeving vindt u supermarkten, lokale winkels, medische centra en diverse restaurants met internationale en Spaanse keuken. Ook zijn er goede verbindingen naar golfbanen, stranden aan de Middellandse Zee en culturele steden als Torrevieja en Alicante. Voor actieve levensgenieters zijn er fiets- en wandelroutes, markten en een levendige expatgemeenschap.
De ligging tussen de Costa Blanca en Costa Cálida maakt Los Montesinos aantrekkelijk voor wie de regio nog niet kent, maar op zoek is naar kwaliteit van leven, comfort en een authentieke Spaanse sfeer. Ontdek het zelf en ervaar waarom zoveel buitenlanders hun tweede thuis in deze streek vinden. Uw nieuwe begin wacht op u!
Casas Palmeras is al jaren de vertrouwde makelaar voor internationale kopers in de regio Costa Blanca – Costa Cálida. Ons deskundige team begeleidt u persoonlijk bij elke stap: van bezichtiging tot aankoop en nazorg. Wij luisteren naar uw wensen en bieden maatwerkadvies, zodat u met een gerust hart uw droom in Spanje waarmaakt. Neem vandaag nog contact op en laat ons u begeleiden naar een zorgeloze aankoop onder de Spaanse zon!
Welkom in Los Montesinos, een idyllisch dorpje gelegen in het hart van de Costa Blanca, Spanje. Dit pittoreske stadje biedt de perfecte mix van traditionele Spaanse charme en moderne gemakken, waardoor het een aantrekkelijke plek is om te wonen. Of u nu op zoek bent naar een vakantiewoning of een permanente verblijfplaats, Los Montesinos heeft alles wat u zoekt.
Los Montesinos ligt strategisch in de provincie Alicante, op slechts 15 minuten rijden van de kust en de prachtige stranden van Torrevieja en Guardamar del Segura. Het dorp ligt ook dicht bij de populaire zoutmeren van Torrevieja, bekend om hun gezondheidsbevorderende eigenschappen. De centrale ligging maakt Los Montesinos een ideaal uitgangspunt voor het verkennen van de Costa Blanca, met gemakkelijke toegang tot zowel de AP-7 als de N-332, de belangrijkste verbindingswegen in de regio.
Het klimaat in Los Montesinos is een van de grootste trekpleisters. Met meer dan 300 zonnige dagen per jaar en milde winters, is het weer hier ideaal voor liefhebbers van het buitenleven. De zomers zijn warm, met temperaturen die regelmatig boven de 30 graden Celsius uitstijgen, terwijl de winters mild en aangenaam zijn, waardoor het een perfecte bestemming is voor overwinteraars.
Los Montesinos heeft een diverse en groeiende bevolking. Oorspronkelijk een klein landbouwdorp, heeft het de afgelopen decennia een aanzienlijke groei doorgemaakt, mede dankzij de populariteit onder buitenlandse inwoners. De gemeenschap is een mix van Spanjaarden en Europese expats, waaronder veel Britten, Duitsers en Nederlanders. Dit zorgt voor een levendige en multiculturele sfeer, waar u zich snel thuis zult voelen.
Los Montesinos staat bekend om zijn rijke culturele erfgoed en traditionele feesten. Het hele jaar door worden er verschillende festivals en evenementen georganiseerd, waarbij de lokale bevolking en bezoekers samenkomen om te genieten van muziek, dans en lekker eten. De omgeving biedt ook volop mogelijkheden voor natuurliefhebbers. De nabijgelegen zoutmeren en natuurparken zijn perfect voor wandelingen, fietstochten en vogelspotten.
De levensstijl in Los Montesinos is ontspannen en gemoedelijk. U kunt genieten van een rustig levenstempo, weg van de drukte van de grotere steden. Tegelijkertijd biedt het dorp alle noodzakelijke voorzieningen, waaronder winkels, restaurants, medische centra en scholen, zodat u niets tekort komt.
Los Montesinos heeft een rijke geschiedenis die teruggaat tot de tijd van de Romeinen. Het dorp heeft zijn naam te danken aan de Montesinos-familie, die een belangrijke rol speelde in de ontwikkeling van de regio. Hoewel Los Montesinos door de jaren heen is gemoderniseerd, heeft het zijn authentieke charme behouden, wat bijdraagt aan de aantrekkingskracht op zowel toeristen als nieuwe inwoners.
Wonen in Los Montesinos biedt u de mogelijkheid om te genieten van het beste wat de Costa Blanca te bieden heeft. Of u nu op zoek bent naar een rustige omgeving voor uw pensioen, een gezinsvriendelijke plek met goede voorzieningen, of een vakantiewoning dichtbij de kust, Los Montesinos heeft het allemaal. De huizenmarkt in het dorp is divers, met een breed scala aan woningen, van moderne appartementen tot ruime villa's.
Wanneer u overweegt een huis te kopen in Los Montesinos, is het belangrijk om samen te werken met een betrouwbare makelaar die de lokale markt goed kent. Casas Palmeras Real Estate is uw ideale partner in dit proces. Met onze ervaring in de regio en een kennis van de lokale vastgoedmarkt, kan Casas Palmeras u begeleiden bij elke stap van het koopproces. Of u nu op zoek bent naar een tweede huis, een investering of uw droomhuis in Spanje, het team van Casas Palmeras staat klaar om u te helpen de perfecte woning te vinden.
Los Montesinos is een verborgen juweel aan de Costa Blanca, waar traditionele charme en moderne levenskwaliteit samenkomen. Met zijn gunstige ligging, aangename klimaat, en diverse cultuur is het een ideale plek om te wonen. Vertrouw op Casas Palmeras Real Estate om uw zoektocht naar een woning in Los Montesinos tot een succes te maken. Uw Spaanse droomhuis wacht op u in dit prachtige dorp.