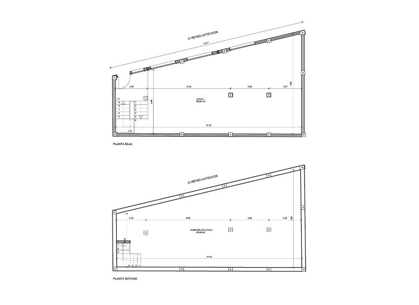
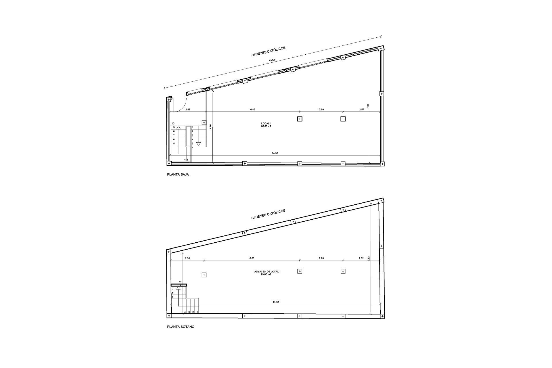
Are you looking for a versatile real estate project in the sun? This brand-new commercial unit in Los Montesinos offers you the perfect foundation to make your dream on the Costa Blanca a reality. With a generous living area of 182 m², spread over a 97 m² ground floor and an 85 m² semi-basement, you have plenty of space to create your ideal business or home. Thanks to four large windows at the front, the property is bathed in natural daylight, creating an inviting atmosphere for customers or a bright, spacious living environment if you choose to use it as a residence.
The unit will be delivered unfinished and empty, giving you complete freedom to choose your own style and layout. The raised entrance and large windows give the space a modern look, making it ideal for a gallery, retail space, professional office, or a spacious loft apartment. The semi-basement offers additional storage space or can be converted into part of a luxurious living area.
This property is the perfect fit for international buyers seeking flexibility, space, and investment potential in a safe and sunny region. Whether you dream of running your own business, setting up a studio, or living in a spacious, light-filled home, this unit offers you the chance to shape your future in Spain. Take the first step toward a new life in Los Montesinos today and discover the possibilities!
Los Montesinos is a charming village in the heart of the Costa Blanca, known for its mild climate and friendly atmosphere. Here you can enjoy more than 300 days of sunshine a year, a relaxed lifestyle, and beautiful natural surroundings. The proximity of salinas (salt flats) ensures clean air and picturesque walking trails.
In the immediate vicinity, you’ll find supermarkets, local shops, medical centers, and a variety of restaurants serving international and Spanish cuisine. There are also good connections to golf courses, Mediterranean beaches, and cultural cities such as Torrevieja and Alicante. For active lifestyle enthusiasts, there are cycling and hiking trails, markets, and a vibrant expat community.
Located between the Costa Blanca and Costa Cálida, Los Montesinos is an attractive destination for those who are new to the region but are looking for quality of life, comfort, and an authentic Spanish atmosphere. Discover it for yourself and see why so many expats choose to make this area their second home. Your new beginning awaits you!
Casas Palmeras has been the trusted real estate agent for international buyers in the Costa Blanca – Costa Cálida region for many years. Our expert team provides personalized guidance every step of the way: from viewings to purchase and after-sales support. We listen to your needs and offer tailored advice, so you can realize your dream in Spain with complete peace of mind. Contact us today and let us guide you toward a worry-free purchase under the Spanish sun!
Welcome to Los Montesinos, an idyllic village located in the heart of the Costa Blanca, Spain. This picturesque town offers the perfect blend of traditional Spanish charm and modern conveniences, making it an attractive place to live. Whether you are looking for a vacation home or a permanent residence, Los Montesinos has everything you are looking for.
Los Montesinos is strategically located in the province of Alicante, just a 15-minute drive from the coast and the beautiful beaches of Torrevieja and Guardamar del Segura. The village is also close to the popular salt lakes of Torrevieja, known for their health benefits. Its central location makes Los Montesinos an ideal starting point for exploring the Costa Blanca, with easy access to both the AP-7 and the N-332, the main connecting roads in the region.
The climate in Los Montesinos is one of its biggest draws. With more than 300 sunny days a year and mild winters, the weather here is ideal for outdoor enthusiasts. Summers are warm, with temperatures regularly exceeding 30 degrees Celsius, while winters are mild and pleasant, making it a perfect destination for winter travelers.
Los Montesinos has a diverse and growing population. Originally a small agricultural village, it has experienced significant growth in recent decades, thanks in part to its popularity among foreign residents. The community is a mix of Spaniards and European expats, including many British, German and Dutch. This makes for a lively and multicultural atmosphere, where you will quickly feel at home.
Los Montesinos is known for its rich cultural heritage and traditional fiestas. Various festivals and events are held throughout the year, bringing locals and visitors together to enjoy music, dancing and good food. The area also offers plenty of opportunities for nature lovers. The nearby salt lakes and natural parks are perfect for hiking, biking and bird watching.
The lifestyle in Los Montesinos is relaxed and convivial. You can enjoy a quiet pace of life away from the hustle and bustle of larger cities. At the same time, the village offers all necessary amenities, including stores, restaurants, medical centers and schools, so you won't lack anything.
Los Montesinos has a rich history dating back to the time of the Romans. The village gets its name from the Montesinos family, who played an important role in the development of the region. Although Los Montesinos has been modernized over the years, it has retained its authentic charm, contributing to its appeal to tourists and new residents alike.
Living in Los Montesinos offers you the opportunity to enjoy the best that the Costa Blanca has to offer. Whether you are looking for a tranquil setting for retirement, a family-friendly place with good amenities, or a vacation home close to the coast, Los Montesinos has it all. The housing market in the village is diverse, with a wide range of properties from modern apartments to spacious villas.
When considering buying a home in Los Montesinos, it is important to work with a reliable real estate agent who knows the local market well. Casas Palmeras Real Estate is your ideal partner in this process. With our experience in the region and a knowledge of the local real estate market, Casas Palmeras can guide you through every step of the buying process. Whether you are looking for a second home, an investment or your dream home in Spain, the team at Casas Palmeras is ready to help you find the perfect property.
Los Montesinos is a hidden gem on the Costa Blanca, where traditional charm meets modern quality of life. With its convenient location, pleasant climate, and diverse culture, it is an ideal place to live. Trust Casas Palmeras Real Estate to make your search for a home in Los Montesinos a success. Your Spanish dream home awaits you in this beautiful village.